收藏作品

集合式住宅

透天.別墅

商業空間

  • 首頁
  • 公司簡介
  • 作品總覽
  • 部落格
  • 服務流程
  • 線上諮詢
  • 友站連結
  • 徵才資訊
  • 會員登入
關閉搜尋
  1. 首頁
  2. 作品介紹
  3. 作品內頁
  4. 作品集成

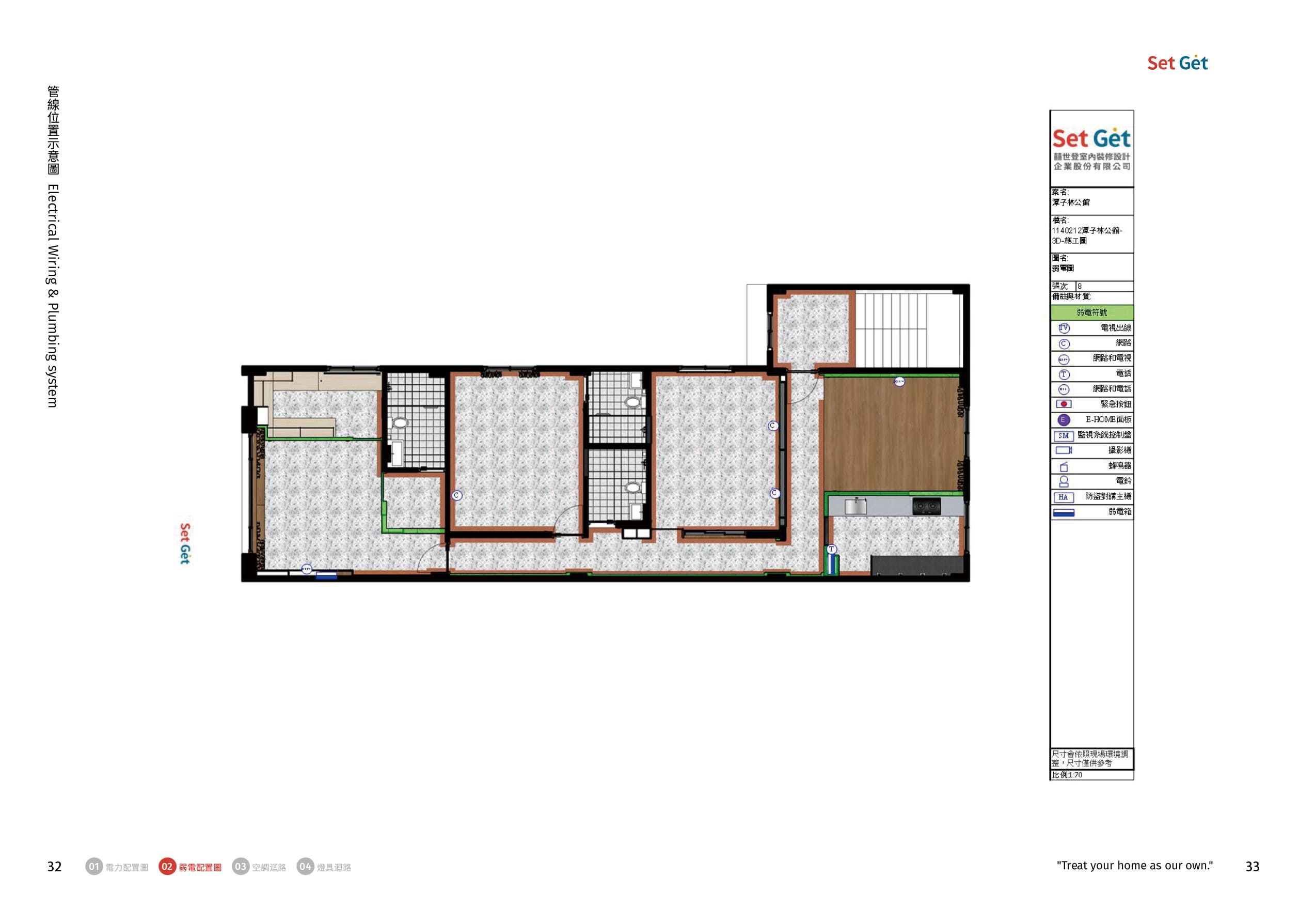
潭子林公館

  • 作品簡介

公司簡介

  • 囍世登精神
  • 服務項目
  • 服務流程
  • 聯絡資訊
  • 線上諮詢

作品總覽

  • 集合式住宅
  • 透天.別墅
  • 商業空間

BLOG文章

  • 囍談談天
  • 囍世登週記

企業資訊

  • 最新消息
  • 友站連結
  • 會員登入
  • 徵才資訊

台中市西屯區青海路二段51號

04-2312 7118

service@mxsetget.com.tw

營業時間 08:00~17:30 *採預約制

©囍世登室內裝修設計企業股份有限公司 SetGet 2018 All Rights Reserved. Designed by SUNSTAR

  • 選單